Gepflegtes Stadthaus mit ELW in Isny, nahe der Innenstadt
Eckdaten
- Art Einfamilienhaus mit Einliegerwohnung
- Lage 88316 Isny im Allgäu
- Kaufpreis 495.000,00 €
- Wohnfläche ca. 146 m²
- Grundstück ca. 269 m²
- Zimmer 7
- Baujahr 1990
- Nutzfläche ca. 41 m²
- Heizungsart Zentralheizung
- Einbauküche ja
- Gäste-WC ja
- Stellplatztyp Aussenstellplatz
- Stellplatzanzahl 2
- Vermietet nein
- Bezugstermin Frühjahr 2027
- Bodenbelag Parkett, Fliesen, Teppichboden
- Ausstattung des Bades Badewanne, Dusche, Fenster
- Zustand Gepflegt
- Immobilien-ID 12862
- Provision 3,57 % inkl. MwSt.
Immobilie
Das Einfamilienhaus (Grundbaujahr 1965/ Aufstockung 1990/ Anbau 2004) mit Einliegerwohnung, besticht durch seine solide Massivbauweise und den gepflegten Gebäudezustand. Mit einer Wohnfläche von ca. 146 m² bietet das Haus ausreichend Platz für eine Familie. Zwei Parkplätze stehen direkt vor dem Haus zur Verfügung, und die Gas-Zentralheizung sorgt für angenehme Wärme. Eine Terrasse lädt zum Verweilen im Freien ein. Stetige Modernisierungsmaßnahmen wurden vorgenommen. Ein kleiner Garten ums Haus, ein großer, separater Keller und ein zusätzlicher Gartenschuppen rundet das Angebot ab und bietet zusätzlichen Stauraum.
Die Räumlichkeiten sind gemütlich und freundlich gestaltet, wodurch eine angenehme Wohnatmosphäre entsteht. Eine separate Einliegerwohnung ermöglicht flexibles Wohnen für mehrere Generationen. Die Zimmer verteilen sich auf zwei Etagen und bieten ausreichend Platz für individuelle Gestaltungsmöglichkeiten.
Insgesamt präsentiert sich die Immobilie als attraktives Zuhause für eine Familie, die auf der Suche nach einem komfortablen und geräumigen Eigenheim ist.
Lage
Das Einfamilienhaus mit Einliegerwohnung befindet sich in einem ruhigen Wohnviertel im Stadtteil Isny im Allgäu. Die Wohnlage zeichnet sich durch eine angenehme Atmosphäre und eine freundliche Nachbarschaft aus. Geschäfte des täglichen Bedarfs sowie Schulen und Kindergärten sind in unmittelbarer Nähe vorhanden, was die Wohngegend besonders attraktiv für Familien macht.
Die Stadtmitte von Isny, sowie das Naturschutzgebiet Rotmoos ist in wenigen Minuten fußläufig erreichbar.
Isny im Allgäu ist eine historische Kleinstadt im Süden Deutschlands und bietet eine charmante Altstadt mit malerischen Fachwerkhäusern und gemütlichen Cafés. Die Stadt verfügt über eine gute Infrastruktur mit zahlreichen Einkaufsmöglichkeiten, Restaurants und kulturellen Einrichtungen. Die umliegende Natur lädt zu ausgiebigen Spaziergängen und Wanderungen ein und bietet zudem vielfältige Freizeitmöglichkeiten wie Radfahren, Skifahren und Schwimmen.
Die Region um Isny im Allgäu ist geprägt durch die atemberaubende Landschaft der Allgäuer Alpen und des Bodensees. Hier finden Naturliebhaber und Aktivurlauber ideale Bedingungen für Erholung und sportliche Betätigung. Die Nähe zur Schweiz und Österreich ermöglicht zudem interessante Ausflüge in die umliegenden Länder. Insgesamt bietet die Region eine hohe Lebensqualität und eine gelungene Kombination aus Natur, Kultur und urbanem Flair.
Ausstattung
– Einbauküche
– Einliegerwohnung im EG (2004)
– Holzdecken mit LED-Spots im Haus
– Außenfassade und Holzfenster außen neu gestrichen (2021); teils Holzverkleidung an Außenfassade
– PV-Anlage mit 8kw
– SENEC Speicher 10kw
– SENEC Wall-Box für PKW
– neue Gas-Heizung von 2021; neuer Warmwasserboiler; Heizkörper im Haus
– Dachboden
– Rollläden im DG
– Dachfenster im DG vor 10 Jahren erneuert (Kunststoff)
– Bodenbeläge: Holzdielen; Fliesen; Vinyl; Teppich im DG
– großer, separater Keller mit nur ca. 1,80 m Höhe (beheizt) über Außentreppe erreichbar (mit Waschküche und Heizraum)Boden wurde 2020 erneuert
– kleiner Garten; Terrasse (Pflaster und Rollierung wurde erneuert); Gartenschuppen zum Verstauen gemeinschaftlich mit Nachbar
– Regentonne im Garten; Brunnen am Haus
– Stellplätze vor dem Haus
Sonstiges
Aufteilung:
Weg als Zufahrt zum Haus.
Hauseingang überdacht.
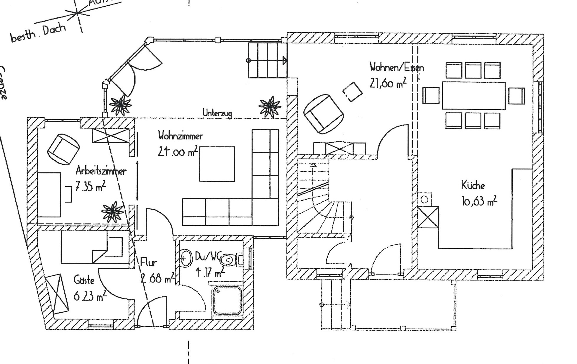
Erdgeschoss:
Diele; Gäste-WC; Küche mit Einbauküche und Esszimmerbereich.
Vom Esszimmer Verbindungstüre in den Anbau. Hier gelangt man über eine Treppe nach unten in das gemütliche Wohnzimmer mit Zugang zur Terrasse/ Garten.
Vom Wohnzimmer gibt es eine Türe in die Einliegerwohnung.
Einliegerwohnung im EG (Anbau 2004):
separate Haustüre; Flur; kleine Küchenzeile; 1 Wohn-Schlafzimmer; Bad mit Dusche/WC
Dachgeschoss:
2 Flure; 3 Kinderzimmer/ Büros; Ein Badezimmer mit Dusche; Badewanne; Einbauschrank; Waschbecken und WC mit Dachfenster (erneuert im Jahr 2021)
1 großes Schlafzimmer mit Einbauschrank
Teilweise Dachbodennischen für zusätzlichen Stauraum in den Zimmern.
Rollläden an den Fenstern.
Dachboden
Keller: separat durch Außentreppe erreichbar.
Beheizt durch Heizkörper. Aufgeteilt in Hauptraum. Hier steht die Technik für die PV-Anlage.
Waschküche separat.
Heiztechnikraum mit Gasheizung und Warmwasserboiler.
Bodenbelag erneuert im Jahr 2020
Garten eingezäunt mit Blumenbeete; Terrasse; Gartenschuppen; Markise vorne am Haus; Brunnen am Haus; Regentonne zur Bewässerung
Energieausweisangaben
- Enerigeausweistyp Bedarfsausweis
- Energiekennwert 201 KWh(m²*a)
- Energieeffizienzklasse G
- Energieausweis erstellt am 27.11.2025
- Energieausweis gültig bis 26.11.2035
- Heizungsart Zentralheizung
- Befeuerung / Energieträger Gas
Grundrisse
Herzlichen Dank für Ihre Anfrage.
Wir werden diese so schnell wie möglich bearbeiten.
